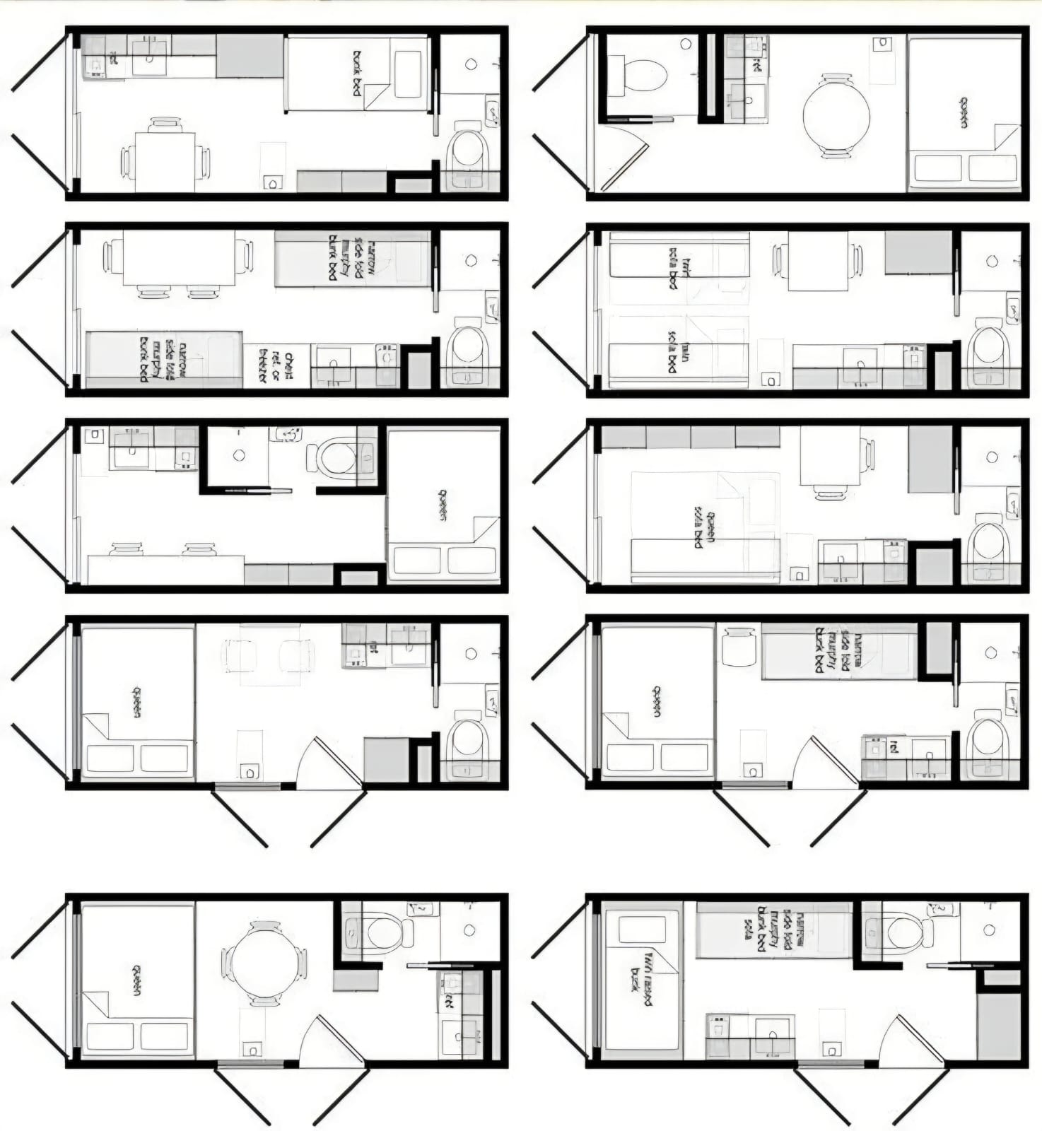
AIRE ACONDICIONADO para un ambiente confortable.
COCINA COMPLETA con bacha, horno, y hornalla vitrocerámica.
BAÑO COMPLETO, con inodoro, ducha, y griferías modernas.
BIODIGESTOR ECOLÓGICO y eficiente para el tratamiento de aguas residuales.
NOSOTROS
BerlinMauer es una empresa de capitales mendocinos dedicada al desarrollo de soluciones modulares inteligentes para vivienda y espacios habitables.
Creamos estructuras pensadas para durar años, combinando diseño, ingeniería y eficiencia en cada proyecto.
Nuestra misión es transformar la forma de construir: más rápido, más sustentable y totalmente adaptable a las necesidades de cada cliente.
Partimos de modelos base, que luego personalizamos según el estilo de vida, el clima y el uso que se le dará al espacio —ya sea vivienda, oficina, alojamiento turístico o instalación remota.
QUÉ HACEMOS
Construcción Modular Inteligente: Diseñamos y fabricamos módulos habitables de alta resistencia, listos para instalar en cualquier punto del país.
Adaptabilidad Total: Cada módulo puede ampliarse, conectarse o modificarse según tus necesidades.
Eficiencia Energética: Aplicamos sistemas de aislamiento térmico y soluciones sustentables que reducen el consumo energético.
Diseño Personalizado: Desde el exterior hasta los interiores, cada detalle puede reflejar tu estilo o el concepto de tu empresa.
NUESTRO COMPROMISO
Con más de dos décadas de trayectoria en proyectos de infraestructura, en BerlinMauer evolucionamos hacia un nuevo modelo de construcción: eficiente, durable y adaptable al futuro.
Nuestro equipo multidisciplinario garantiza precisión en el diseño, calidad en los materiales y cumplimiento en cada etapa.
BerlinMauer: Construidas para durar años.
Asesoramiento online disponible.
CALIDAD Y
TECNOLOGIA
En Berlinmauer no solo construimos viviendas, creamos
experiencias. Nos aseguramos de que cada espacio sea
cómodo, moderno, y funcional, utilizando materiales de la
más alta calidad para garantizar durabilidad y confort.
Estructura de acero reforzado, diseñada para resistir
cualquier clima.
Revestimientos interiores y exteriores resistentes a la
humedad y a las condiciones más extremas.
Electrodomésticos y mobiliario incluidos, para que solo te
preocupes por disfrutar.

INVERSIÓN
INTELIGENTE
Listo para Instalar
Nuestro equipo de profesionales no solo construye,
sino que también se encarga del transporte gratuito
dentro de Mendoza y la colocación con nuestro
sistema de elevación 4×4 en zonas de difícil acceso.
Tu contenedor estará listo para habitar desde el
primer día. Todo está pensado para que no tengas
que preocuparte por nada, solo por disfrutar de tu
nuevo hogar.

VENTANAS CON DOBLE VIDRIO hermético (DVH) para máxima aislación.
CERRADURA INTELIGENTE para mayor seguridad.
TABLERO DE DOMÓTICA para controlar la casa con un solo clic.
LUMINACIÓN LED y apliques exteriores resistentes a todo clima.
HABITABILIDAD AL
INSTANTE
listo para Habitar
Nuestro equipo de profesionales no solo construye,
sino que también se encarga del transporte gratuito
dentro de Mendoza y la colocación con nuestro
sistema de elevación 4×4 en zonas de difícil acceso.
Tu contenedor estará listo para habitar desde el
primer día. Todo está pensado para que no tengas
que preocuparte por nada, solo por disfrutar de tu
nuevo hogar.





